Posted in Espaces de Coworkings
Un bonne nouvelle pour les Coworker d’Angoulême, Idéal Coworking Angoulême devrait ouvrir ses portes d’ici fin juin 2021.
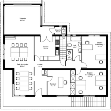
Au sein d’un espace de plus de 300m², vous pourrez profiter d’un cadre propice au travail pour une heure, une journée, à la carte ou à l’année.
- 5 postes de travail en bureau à partager,
- 1 salle de réunion / formation de 30 m²
- 1 salle de réunion / formation de 15 m²
- 1 espace détente et coin cuisine
- 1 espace accueil coworking au rez-de-chaussée
- 1 espace jardin pour travailler au calme et sous le soleil
Contactez Ideal Coworking Angoulême
Les données renseignées sur le formulaire nous permettront de vous recontacter afin d’évaluer avec vous vos besoins.
Plus d’informations sur le respect des données à caractère personnel sur nos mentions légales.
Idéal Coworking Angoulême
Opening hours:
- Monday
-
hour sep
- Tuesday
-
hour sep
- Wednesday
-
hour sep
- Thursday
-
hour sep
- Friday
-
hour sep
- Saturday
-
hour sep
